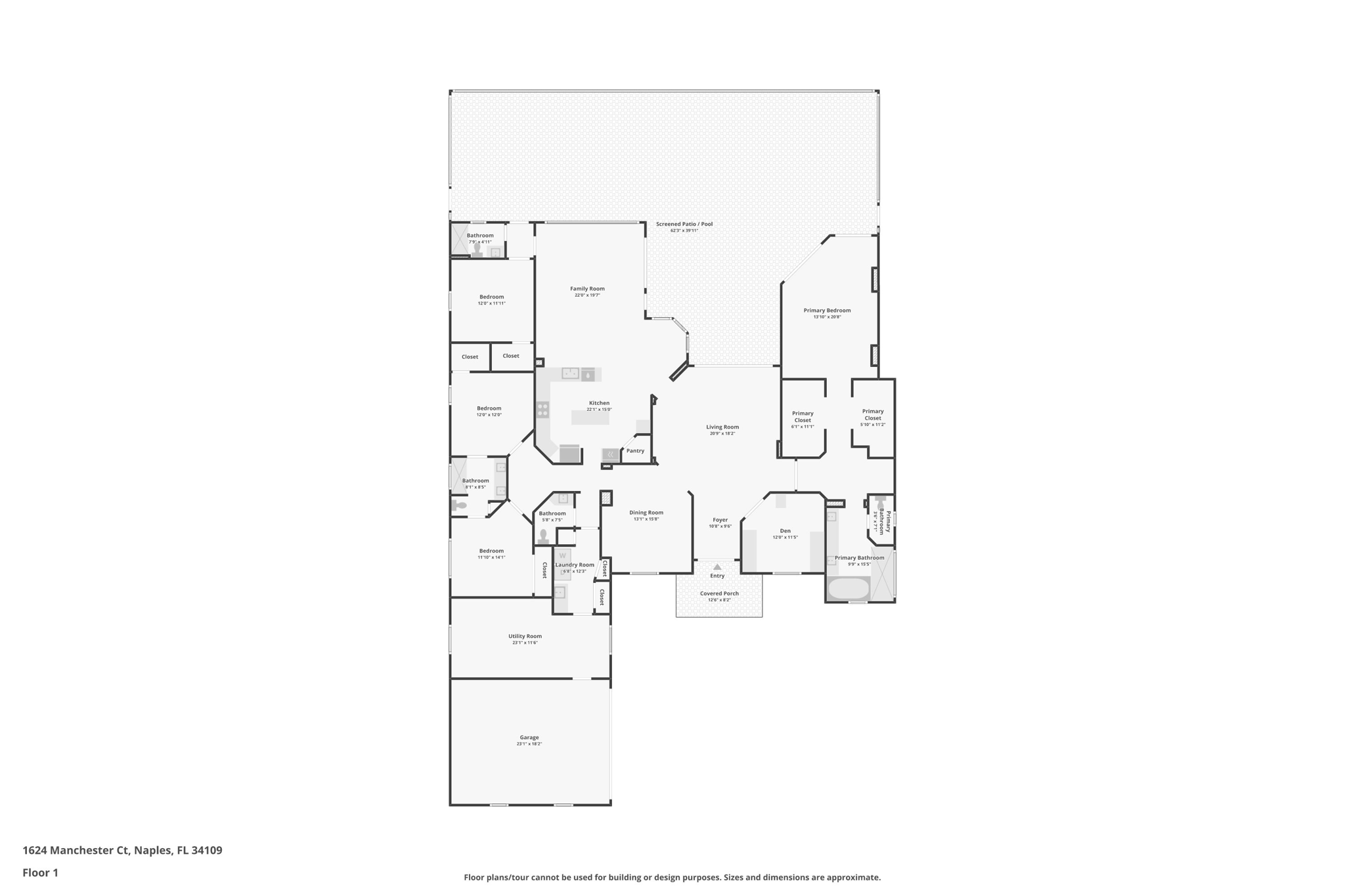
1624 Manchester Ct, Naples, FL 34109
Toggle Navigation
Details
Images
Videos
Floor Plans
3D Tour
Map
Previous Photo
Next Photo
Details
$2,395,000
3,526 Sq/ft
Built in 2001
Images
Slideshow
Photo Grid
Hide
Previous
Next
Show more
Videos
Floor Plans
Slideshow
Photo Grid
Hide
Previous
Next
3D Tour