3165 Landmark Dr 714, Clearwater, FL 33761
Toggle Navigation
Images
Videos
Floor Plans
3D Tour
Map
Previous Photo
Next Photo
Images
Slideshow
Photo Grid
Hide
Previous
Next
Show more
Videos
AI Walk-Through Video #1
AI Social Media Video #1
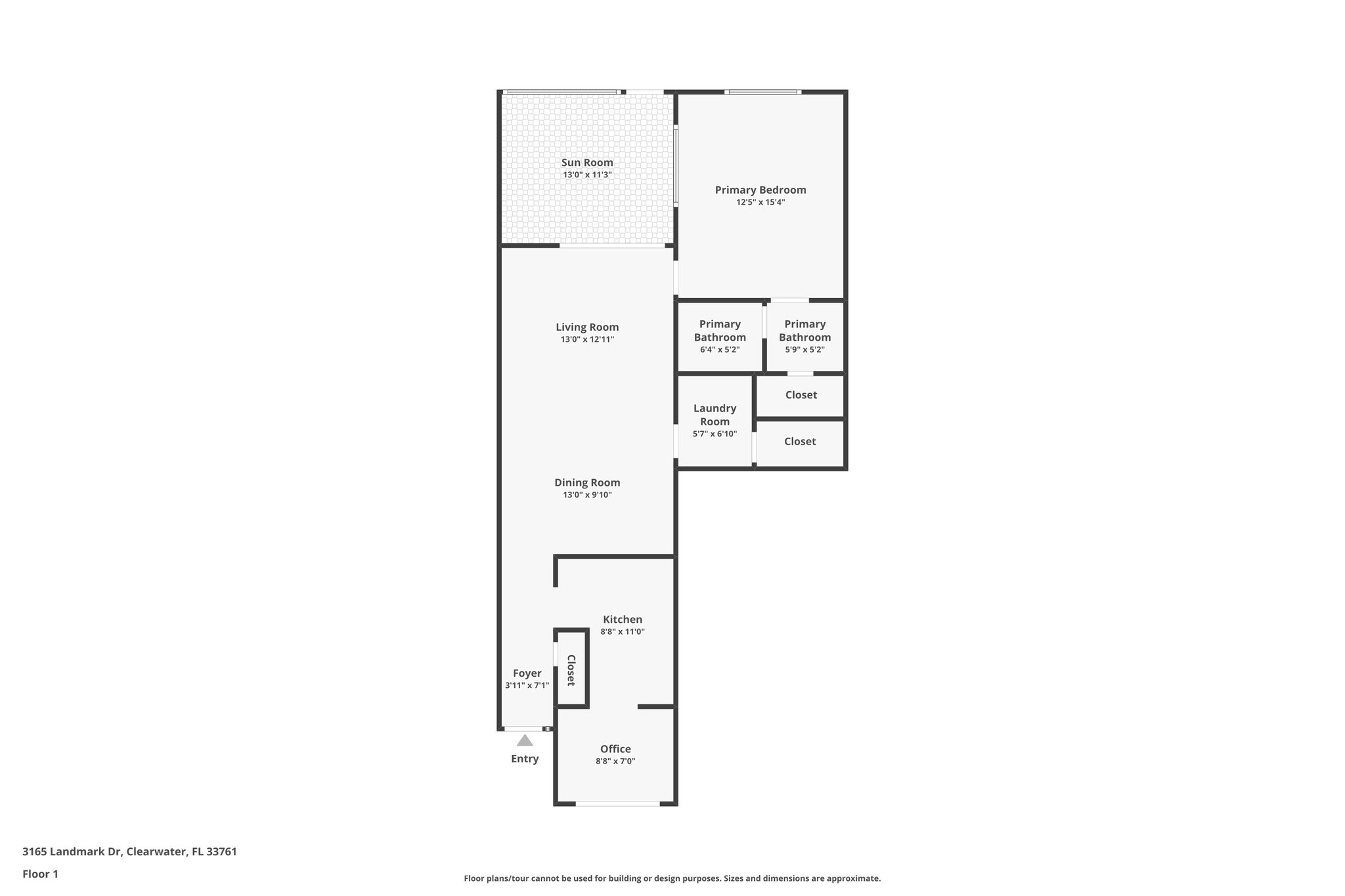
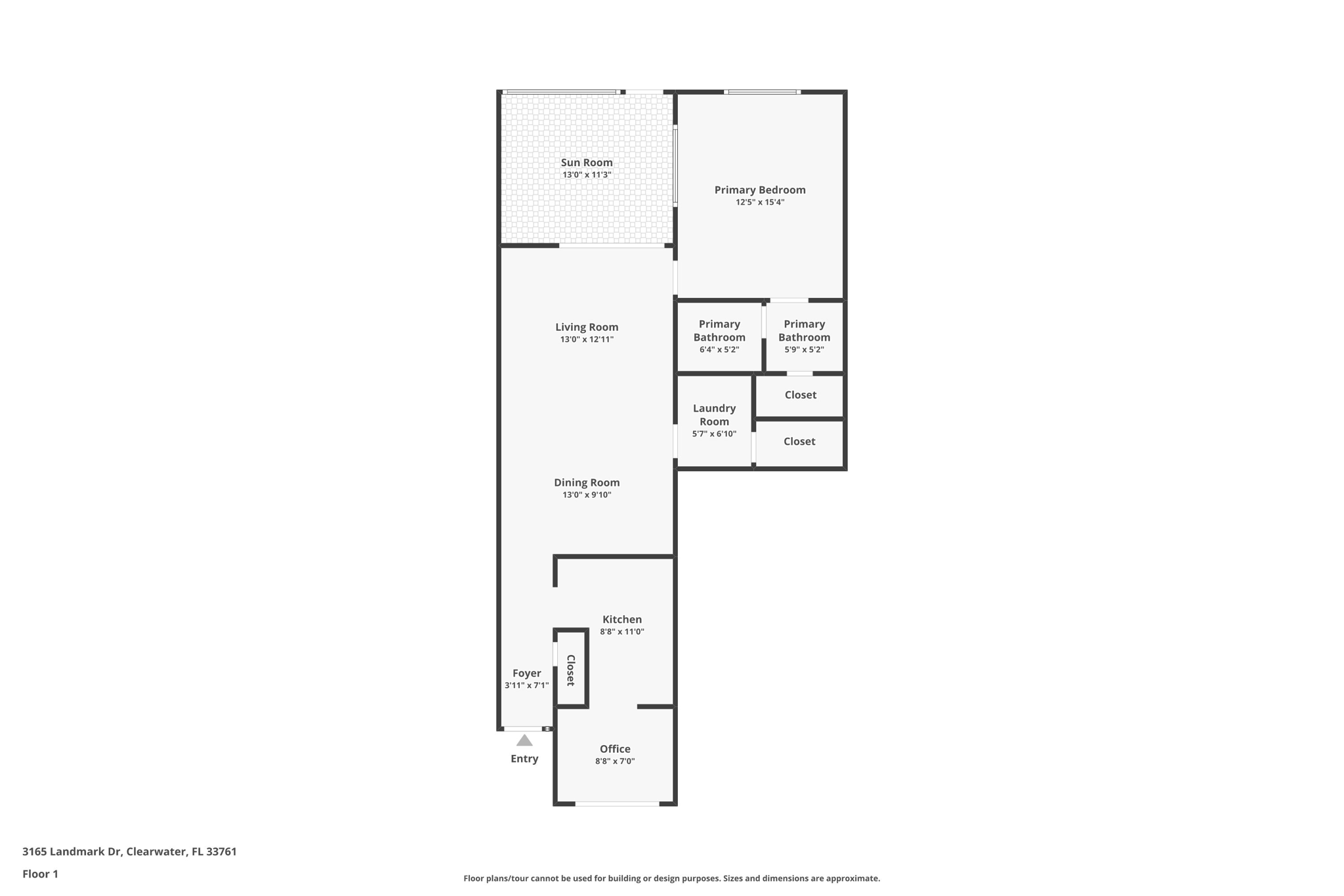
Floor Plans
Slideshow
Photo Grid
Hide
Previous
Next
3D Tour