Details

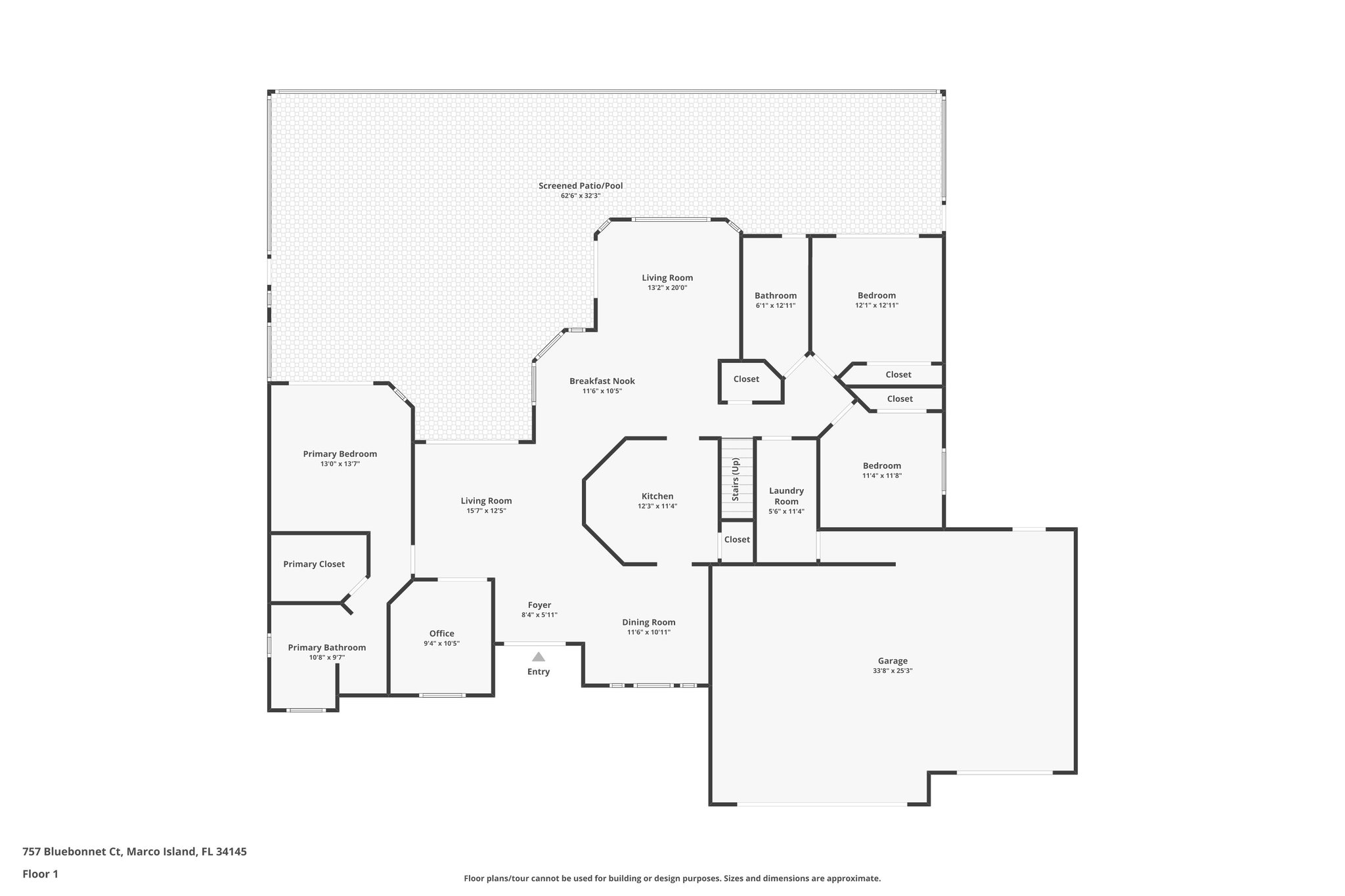
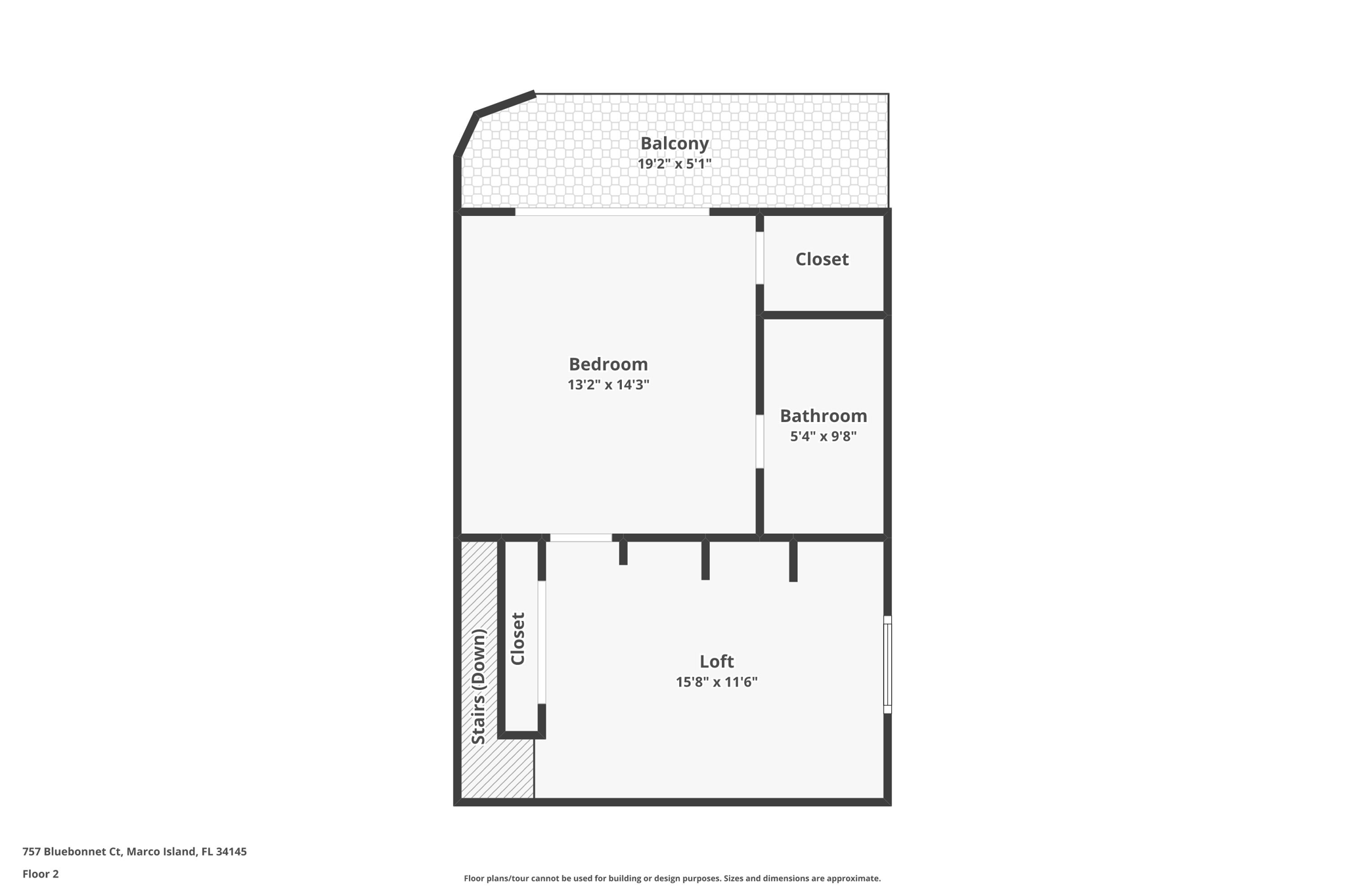
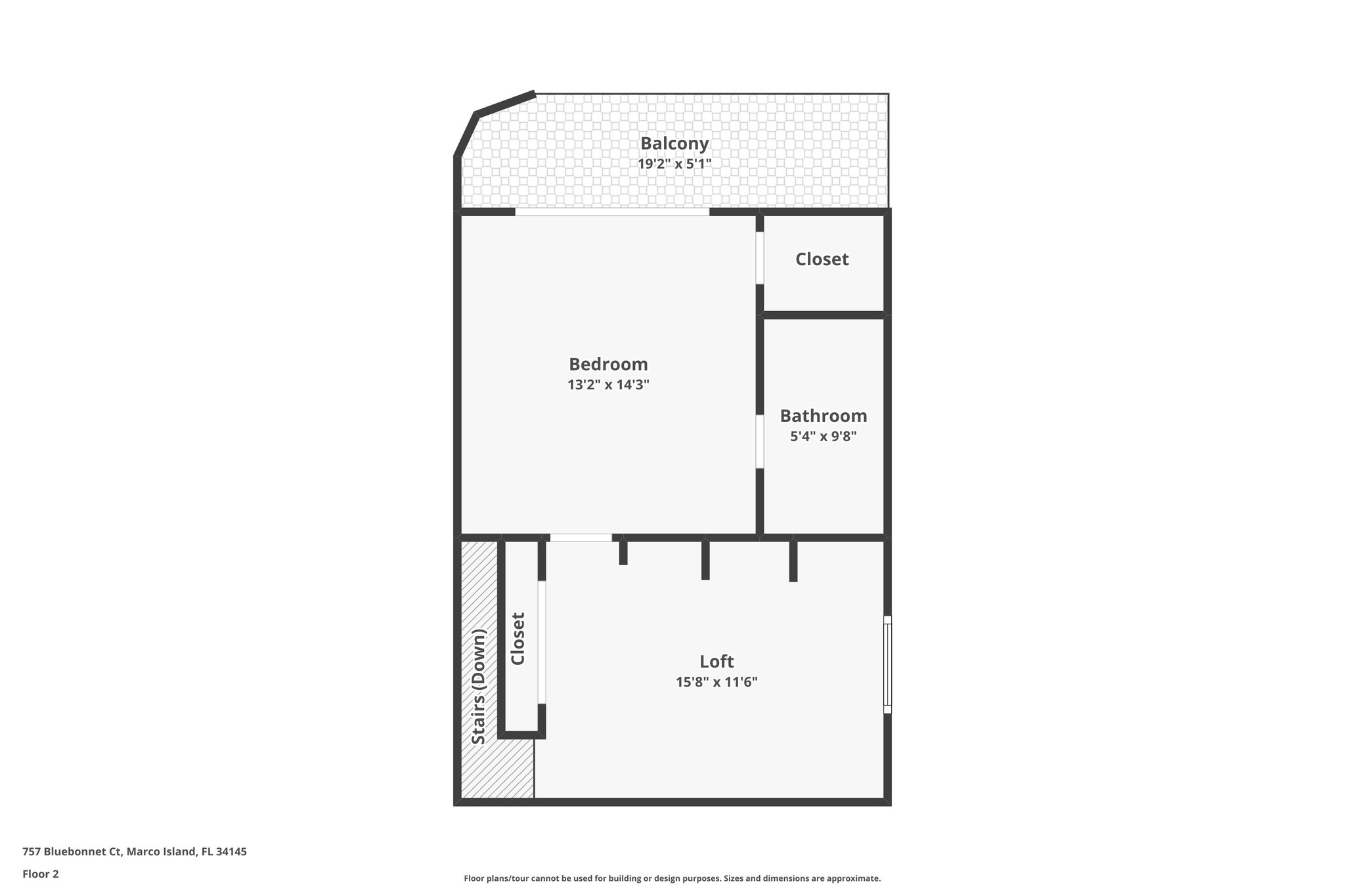
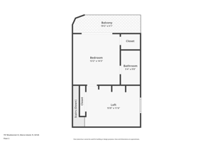
Soak in breathtaking southern exposure, long water views and golden sunsets at 757 Bluebonnet Court on Marco Island. This exceptional 4-bedroom + den, 3-bathroom, single-family home sits on a rare 0.36-acre oversized lot in one of Marco Island’s most desirable neighborhoods—offering the perfect blend of luxury, space, and island lifestyle - right down the road from the best beach and dining here in Southwest Florida. Built in 2005 with concrete block construction the 2,621 sq ft living area features an inviting open great-room floor plan. The first floor master bedroom provides picturesque water views and a walk out to the inviting lanai. Welcome guests into one of the 3 extra bedrooms while maintaining your peace with a dedicated office/den right off the master suite. Upstairs, you’ll find a versatile multi-use room (ideal as a bedroom, office, or media space) plus a fourth bedroom with its own sunset balcony and en-suite — perfect for enjoying those iconic Marco Island evenings.

Step outside to your expansive paver lanai overlooking your oversized pool and spa and sun drenched outdoor entertaining space overlooking the waterfront. A newer seawall protects your 120' of waterfront for years to come. Quick access to the open waters of the Gulf of America - accessible under Marco Island’s highest-clearance bridge at Smokehouse Bay. Rest easy knowing your property sits on an extra high elevation, full hurricane protection, and a back up whole-home generator with a buried 250 gal propane tank! And room for all your needs in the 3 car garage. Just minutes from Marco Island’s pristine beaches, boutique shops, and acclaimed restaurants, this turn-key gem is an must see. The cherry on top - No HOA fees and low taxes - schedule your private showing today!

  • $2,250,000
  • 4 Bedrooms
  • 3 Bathrooms
  • 2,621 Sq/ft
  • Lot 0.36 Acres
  • 3 Parking Spots
  • Built in 2005
  • MLS: 226003286

Images

Floor Plans

3D Tour