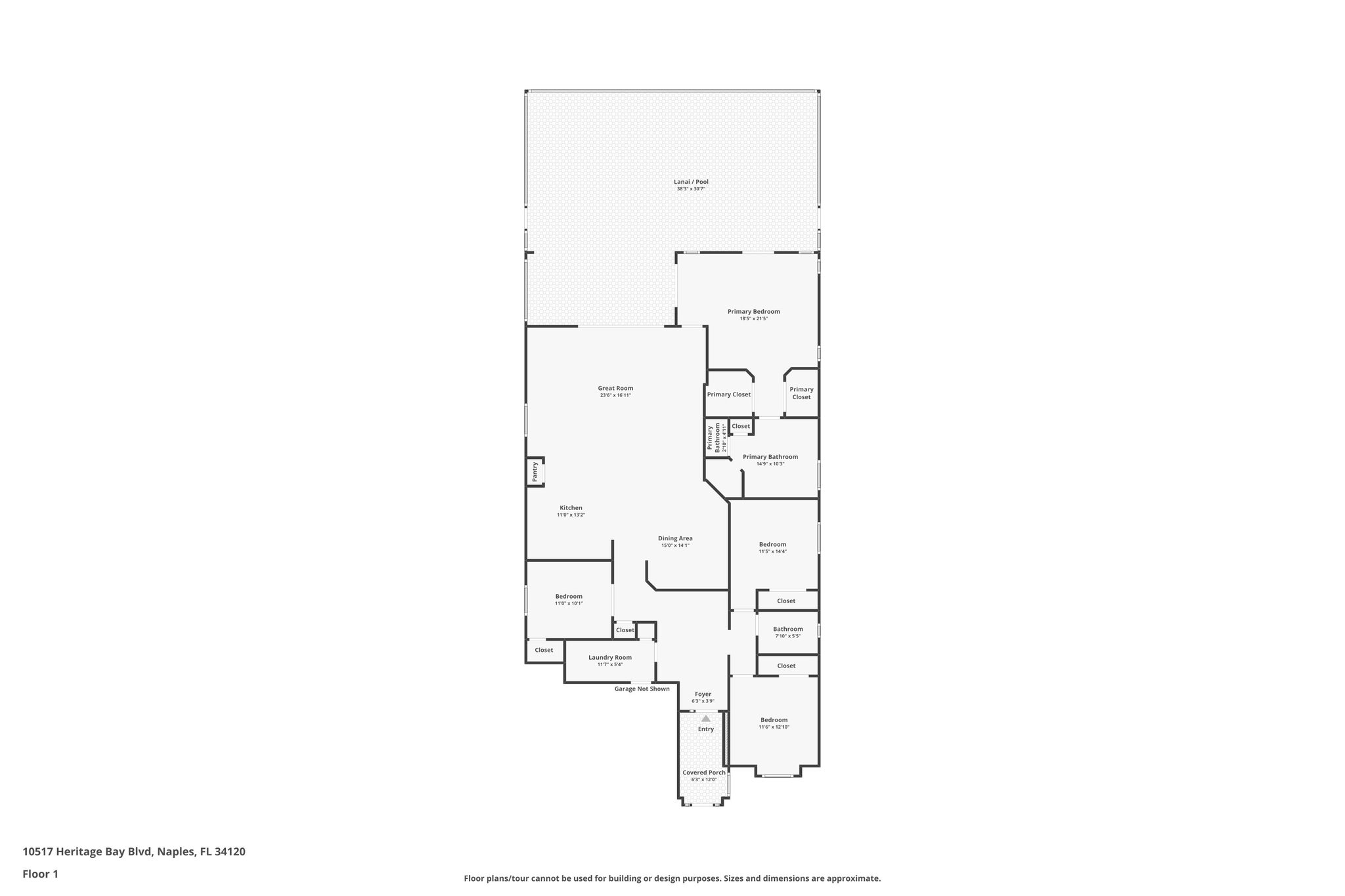
10517 Heritage Bay Blvd, Naples, FL 34120
Toggle Navigation
Details
Images
Floor Plans
3D Tour
Map
Previous Photo
Next Photo
Details
$1,290,000
4 Bedrooms
2 Bathrooms
2,273 Sq/ft
Lot 0.21 Acres
2 Parking Spots
Built in 2008
MLS: 226008021
Images
Slideshow
Photo Grid
Hide
Previous
Next
Show more
Floor Plans
Slideshow
Photo Grid
Hide
Previous
Next
3D Tour